We are finally finished designing our new home in Lafayette, LA. We hired an architect (Longo Architecture) to design the home, which took about 5 months from start to finish. As of today, we are closing on the construction loan and construction will begin shortly (our builder is LR Mitchell and we have had a great experience so far). We are expecting it to take between 8-11 months. I will say that the process has not been easy and I would not recommend it for the faint-hearted 🙂
Our house is going to be built in the Fernewood Subdivision of Lafayette, LA. Here is a map.
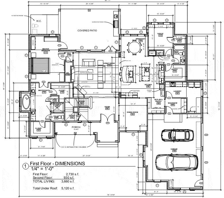
Here are a few pictures from the architectural drawings:

Front of the Home

Back of the Home

Downstairs Floor Plan

Upstairs Floor Plan

Foyer to Den - 3D

Den to Kitchen - 3D

Kitchen & Breakfast Area - 3D